Классика 60 м2 №344

Цена строительства от 4 800 000 ₽* * Стоимость не является окончательной
Заявка на консультацию
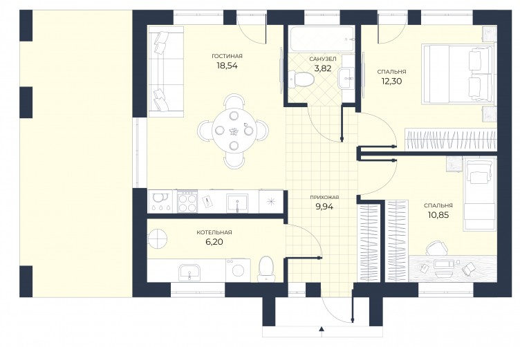
  • Общая площадь 60 м2
  • Длина 13.2 м
  • Ширина 8.8 м
  • Материал стен Кирпич
  • Количество этажей 1
  • Подвал Нет
  • Мансарда без мансарды
  • Гараж Нет
  • Терраса Да
  • Проживание Круглогодичное
  • Количество комнат 3
  • Количество спален 2
  • Количество санузлов 1
  • Вид проекта дом
  • Застройщик Домология
  • Архитектурный стиль Классический
  • Отделка фасада Штукатурка
  • Крыша Двускатная
  • Можно купить домокомплект Нет
  • Модульный тип строения Нет
Планировки
Описание проекта

Дом для небольшой семьи. Много света в любое время дня! Продуманная планировка, зоны хранения позволяют эффективно использовать пространство дома.

Возможно сделать крытую террасу доплата 400 000 руб.

■ Этажей - 1

■ Комнат - 3 

■ Спален - 2

■ Санузел - 2

■ Высота потолков - от 3 до 4,5 метров

■ Кухня-гостиная

■ Зоны хранения

 Предоставляем гарантию на дом - 5 лет!

Виды комплектации

МИНИМАЛЬНАЯ 4 800 000р.

силовой каркас дома

  • Фундамент: железобетонный ростверк на буро-набивных железобетонных сваях, глубиной 3 метра, либо железобетонная монолитная плита.
  • Материал стен: керамический кирпич полнотелый 250 мм, утеплитель ППС толщиной 150 мм.окна, монтажная дверь
  • Кровля: двускатная, минераловатный утеплитель толщиной 250 мм, профилированный лист
  • Перегородки: керамический кирпич полнотелый 250/120 мм
  • Окна: пластиковые пятикамерные 70 мм.

система канализации

ввод коммуникаций

СТАНДАРТНАЯ 5 800 000р.

отделка фасада: декоративная штукатурка

электрический котел, монтаж котельного оборудования

система «Теплый пол»

система водоснабжения: разводка горячей и холодной воды, разводка канализации из пластиковой трубы до точек потребления

стяжка пола: полусухая стяжка, армированная фиброволокном 
и сеткой, по теплому полу

МАКСИМАЛЬНАЯ 6 500 000р.

разводка электрики: сборка и монтаж электрического щита, монтаж эл. счетчика, скрытый монтаж проводки, выводы под розетки и выключатели

штукатурка стен: известково-песчаная штукатурка по маякам

входная дверь: металлическая с терморазрывом и окном

отделка карнизов

септик 5 м3

Вас может заинтересовать
Вас может заинтересовать

Выбор местоположения

Задать вопрос / написать нам

E-mail: domgis@mail.ru

Мы свяжемся с Вами в течение дня.

Тех. поддержка
Предмет обращения:
Тукущая страница

Мы свяжемся с Вами в течение дня.

Уведомление
Предмет обращения:
Тукущая страница
Обратный звонок
Обратный звонок
Выберите ваш город
Пожаловаться

Объявление опубликовано.
Изменения сохранены

Период публикации - бессрочный, при условии подтверждения актуальности каждые 50 дней. Уведомления будут отправляться на Вашу электронную почту.

Выберите причину снятия с публикации

Снятые с публикации объявления не участвуют в поиске и недоступны для подробного просмотра.

Для повторной публикации нажмите «Вернуть в публикацию»