DV 25-3 №677

Цена строительства от 3 927 000 ₽* * Стоимость не является окончательной
Заявка на консультацию
  • Общая площадь 77 м2
  • Длина 11 м
  • Ширина 7 м
  • Материал стен Газобетон/пеноблок
  • Количество этажей 1
  • Подвал Нет
  • Мансарда без мансарды
  • Гараж Нет
  • Терраса Нет
  • Проживание Круглогодичное
  • Количество комнат 3
  • Количество спален 2
  • Количество санузлов 1
  • Вид проекта дом
  • Застройщик Домастрой
  • Архитектурный стиль Классический
  • Отделка фасада Комбинированная
  • Крыша Вальмовая
  • Можно купить домокомплект Нет
  • Модульный тип строения Нет
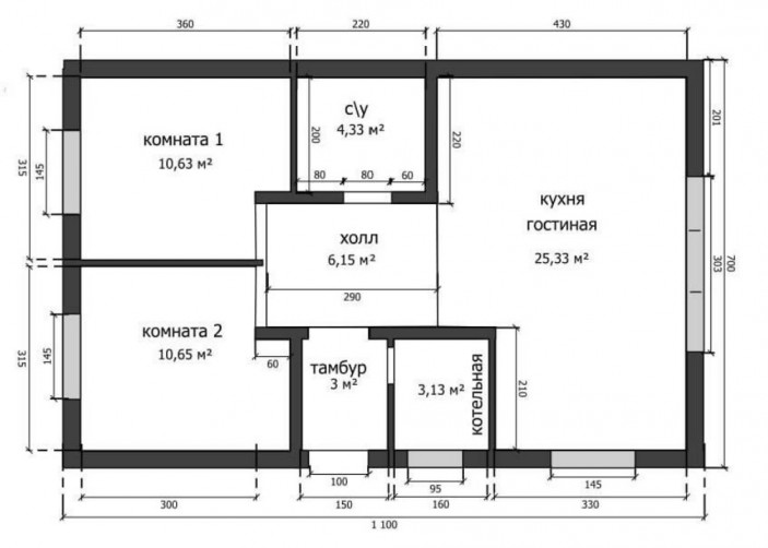
Планировки
Описание проекта

Этот уютный дом площадью 77 м2 – идеальное место для комфортной жизни. Две светлые комнаты по 10 м2 каждая предоставляют уединенное пространство для отдыха и работы. Сердцем дома является просторная кухня-гостиная с французским окном площадью 25 м2, где можно собираться всей семьей или принимать гостей. Здесь достаточно места для приготовления пищи, обеденной зоны и зоны отдыха.

Просторный холл площадью 6 м2 обеспечивает плавный переход между комнатами и добавляет ощущение простора. Раздельный санузел и котельная обеспечивают комфорт и функциональность.

Дом спроектирован с учетом современных требований к комфорту и энергоэффективности, что делает его идеальным выбором для тех, кто ценит уют и практичность.

Вас может заинтересовать
Вас может заинтересовать

Выбор местоположения

Задать вопрос / написать нам

E-mail: domgis@mail.ru

Мы свяжемся с Вами в течение дня.

Тех. поддержка
Предмет обращения:
Тукущая страница

Мы свяжемся с Вами в течение дня.

Уведомление
Предмет обращения:
Тукущая страница
Обратный звонок
Обратный звонок
Выберите ваш город
Пожаловаться

Объявление опубликовано.
Изменения сохранены

Период публикации - бессрочный, при условии подтверждения актуальности каждые 50 дней. Уведомления будут отправляться на Вашу электронную почту.

Выберите причину снятия с публикации

Снятые с публикации объявления не участвуют в поиске и недоступны для подробного просмотра.

Для повторной публикации нажмите «Вернуть в публикацию»