Дом 115 м2 с гаражом 52 м2 №904

Цена строительства от 10 290 000 ₽* * Стоимость не является окончательной
Заявка на консультацию
  • Общая площадь 115 м2
  • Материал стен Газобетон/пеноблок
  • Количество этажей 1
  • Подвал Нет
  • Мансарда без мансарды
  • Гараж Да
  • Терраса Да
  • Проживание Круглогодичное
  • Количество комнат 4
  • Количество спален 3
  • Количество санузлов 2
  • Вид проекта дом
  • Застройщик Инженерные решения
  • Отделка фасада Штукатурка
  • Крыша Двускатная
  • Можно купить домокомплект Нет
  • Модульный тип строения Нет
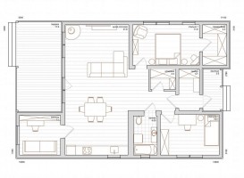
Планировки
Описание проекта

Красивый большой одноэтажный дом с оригинальными комбинированными фасадами, интересной кровлей и гаражом. Имеет три спальни, одна из них мастер спальня с гардеробной и санузлом, просторную кухню гостиную с выходом на террасу, котельную-постирочную, второй санузел, закрытое от осадков крыльцо и просторную террасу, гараж на один авто.

Комплектации

Минимальная: 10 290 000 р.

  • Геология, расчет фундамента
  • Фундамент
  • Отмостка конструктивная
  • Плита пола первого этажа
  • Ввод электричества и воды
  • Разводка канализации
  • Несущие стены газобетон/кирпич
  • Межкомнатные перегородки
  • Межэтажное перекрытие
  • Кровля
  • Окна

Выбор местоположения

Задать вопрос / написать нам

E-mail: domgis@mail.ru

Мы свяжемся с Вами в течение дня.

Тех. поддержка
Предмет обращения:
Тукущая страница

Мы свяжемся с Вами в течение дня.

Уведомление
Предмет обращения:
Тукущая страница
Обратный звонок
Обратный звонок
Выберите ваш город
Пожаловаться

Объявление опубликовано.
Изменения сохранены

Период публикации - бессрочный, при условии подтверждения актуальности каждые 50 дней. Уведомления будут отправляться на Вашу электронную почту.

Выберите причину снятия с публикации

Снятые с публикации объявления не участвуют в поиске и недоступны для подробного просмотра.

Для повторной публикации нажмите «Вернуть в публикацию»