Продажа: Дом 200 м² + участок №54:19:142601:3516 14,2 соток
село Новолуговое, Шишкино, 27 (Новосибирский район)

цена 20 000 000 руб.

№ объекта: 14847

Обновлено: 02.02.2026

  • Отключить автопереход
    карты со схемы на гибрид

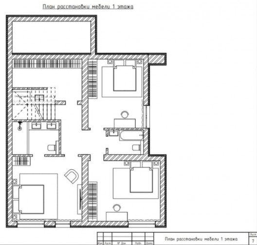
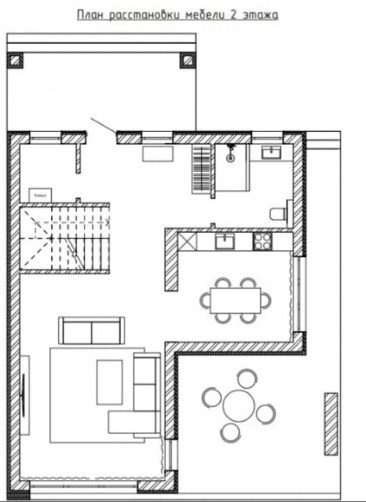
Двухуровневый дом на склоне с видовыми характеристиками на чащу леса. Газ, вода, электричество, асфальтовая дорога, автономный септик - включены в стоимость.

  • Общее описание
  • Местоположение
  • Информация об объекте
  • Информация о земле/участке
  • Коммуникации
  • Поселковая инфраструктура
  • Прочее

Двухуровневый дом на склоне с видовыми характеристиками на чащу леса. Газ, вода, электричество, асфальтовая дорога, автономный септик - включены в стоимость.

Местоположение

Регион
Новосибирская область
Район региона
Новосибирский район
Населенный пункт
село Новолуговое
Муниципальное образование
Новолуговской сельсовет
Направление
район с. Новолуговое - ул.Выборная - ул.Кирова
Микрорайон
Шишкино
Номер дома
27
Ориентир
кадастровый номер 54:19:142601:3516

Информация об объекте

Подтип недвижимости
Дом/коттедж
Вид строения
Незавершенное строительство
Площадь объекта (м²)
200.00
Год постройки
2026
Материал дома
Кирпич
Этажность
2
Кол-во жилых помещений
4
Санузел
Внутренний

Информация о земле/участке

Номер участка
54:19:142601:3516
Площадь участка
14.18 сот
Категория земель
Земли населенных пунктов
Разрешенное использование
ИЖС

Коммуникации

Электричество
есть
Водоснабжение
есть
Вид водоснабжения
Круглогодичное
Тип водоснабжения
Центральное
Газоснабжение
Магистральный в доме или на участке
Канализация
Септик
Проводной интернет
есть

Поселковая инфраструктура

Внутрипоселковая дорога
Асфальтированная
Охрана
есть
Проживание
Круглогодичное
Уличное освещение
есть

Прочее

Поставлен на кадастровый учет
да
Кадастровый паспорт с установленными границами
да

Выбор местоположения

Задать вопрос / написать нам

E-mail: domgis@mail.ru

Мы свяжемся с Вами в течение дня.

Тех. поддержка
Предмет обращения:
Тукущая страница

Мы свяжемся с Вами в течение дня.

Уведомление
Предмет обращения:
Тукущая страница
Обратный звонок
Обратный звонок
Выберите ваш город
Пожаловаться

Объявление опубликовано.
Изменения сохранены

Период публикации - бессрочный, при условии подтверждения актуальности каждые 50 дней. Уведомления будут отправляться на Вашу электронную почту.

Выберите причину снятия с публикации

Снятые с публикации объявления не участвуют в поиске и недоступны для подробного просмотра.

Для повторной публикации нажмите «Вернуть в публикацию»