Продажа: Коммерческая постройка 1386 м²
поселок Смоленский, Строительная, 7к1 (Мошковский район)

цена 67 000 000 руб.

№ объекта: 84263

Обновлено: 12.03.2026

  • Отключить автопереход
    карты со схемы на гибрид
Описание
Продаю производственно-складские здания (производственно-складские комплексы) (земельный участок, огороженный забором)
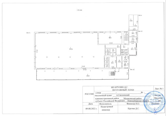
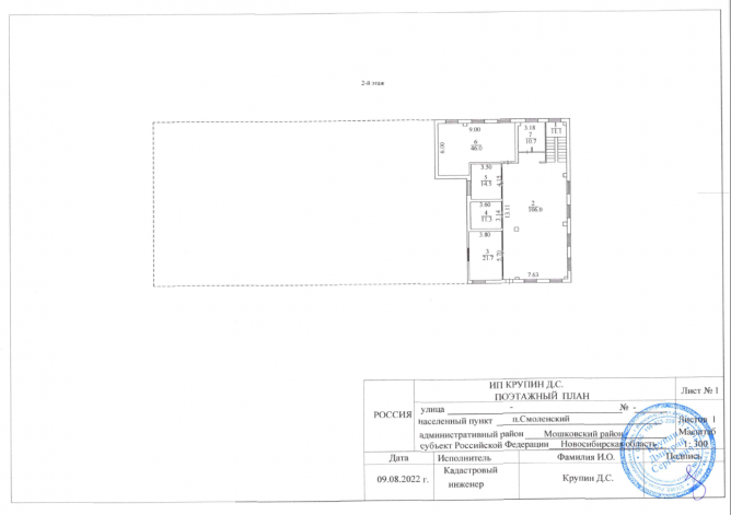
1.Продажа производственного здание с офисными площадями на втором этаже. Общая площадь помещений — 1386,7 м², земельный участок — 10831 кв.м.
2. Объект незавершенного строительства Общая площадь — 432 м².
3. Объект незавершенного строительства Общая площадь — 1200 м², земельный участок — 65085.00 кв.м.
4. Пост охраны Общая площадь —24 м²;
5. Помещение (общежитие) Общая площадь —82м²;
6. Обеспечение электричеством производственной зоны Электроустановки энергосистем -Трансформаторная подстанция наружной установки (ТПН) 630 кВа 7. Промышленные электрические сети, обеспечивающие передачу и распределение электроэнергии для питания производственного оборудования, машин и систем автоматизации.
8. Наружные сети электроснабжения (внешние сети электроснабжения) обеспечивающие подачу электроэнергии от источников питания (генераторные установки, подстанции, распределительные устройства) Тельферная подвесная система (тельфер, электрическая таль) грузоподъёмное устройство с электрическим приводом 2 тонны- 2 шт. Конструкции путей для опорной кран-балки (крановых путей) 5 тонн на длину здания; Кран-балка 5 тонн. В стоимость входит производственное оборудование.
Возможна реализация разделением на несколько лотов
Рассматриваю предложения инвестирования (Долговое/долевое) имеется технология производства малопролетных каркасов на основе ЛСТК
  • Общее описание
  • Местоположение
  • Информация об объекте
  • Информация о земле/участке
  • Коммуникации
  • Прочее
Описание
Продаю производственно-складские здания (производственно-складские комплексы) (земельный участок, огороженный забором)
1.Продажа производственного здание с офисными площадями на втором этаже. Общая площадь помещений — 1386,7 м², земельный участок — 10831 кв.м.
2. Объект незавершенного строительства Общая площадь — 432 м².
3. Объект незавершенного строительства Общая площадь — 1200 м², земельный участок — 65085.00 кв.м.
4. Пост охраны Общая площадь —24 м²;
5. Помещение (общежитие) Общая площадь —82м²;
6. Обеспечение электричеством производственной зоны Электроустановки энергосистем -Трансформаторная подстанция наружной установки (ТПН) 630 кВа 7. Промышленные электрические сети, обеспечивающие передачу и распределение электроэнергии для питания производственного оборудования, машин и систем автоматизации.
8. Наружные сети электроснабжения (внешние сети электроснабжения) обеспечивающие подачу электроэнергии от источников питания (генераторные установки, подстанции, распределительные устройства) Тельферная подвесная система (тельфер, электрическая таль) грузоподъёмное устройство с электрическим приводом 2 тонны- 2 шт. Конструкции путей для опорной кран-балки (крановых путей) 5 тонн на длину здания; Кран-балка 5 тонн. В стоимость входит производственное оборудование.
Возможна реализация разделением на несколько лотов
Рассматриваю предложения инвестирования (Долговое/долевое) имеется технология производства малопролетных каркасов на основе ЛСТК

Местоположение

Регион
Новосибирская область
Район региона
Мошковский район
Населенный пункт
поселок Смоленский
Улица
Строительная
Номер дома
7к1
Ориентир
54:18:070901:824

Информация об объекте

Подтип недвижимости
Производство
Вид строения
Готовое
Площадь объекта (м²)
1386.00

Информация о земле/участке

Площадь участка
108.30 сот
Категория земель
Земли сельхоз назначения
Разрешенное использование
Под промышленную площадку

Коммуникации

Электричество
есть
Водоснабжение
есть
Вид водоснабжения
Круглогодичное
Тип водоснабжения
Центральное
Отопление
Центральное угольное
Канализация
Выгребная яма
Проводной интернет
есть

Прочее

Поставлен на кадастровый учет
да
Кадастровый паспорт с установленными границами
да

Выбор местоположения

Задать вопрос / написать нам

E-mail: domgis@mail.ru

Мы свяжемся с Вами в течение дня.

Тех. поддержка
Предмет обращения:
Тукущая страница

Мы свяжемся с Вами в течение дня.

Уведомление
Предмет обращения:
Тукущая страница
Обратный звонок
Обратный звонок
Выберите ваш город
Пожаловаться

Объявление опубликовано.
Изменения сохранены

Период публикации - бессрочный, при условии подтверждения актуальности каждые 50 дней. Уведомления будут отправляться на Вашу электронную почту.

Выберите причину снятия с публикации

Снятые с публикации объявления не участвуют в поиске и недоступны для подробного просмотра.

Для повторной публикации нажмите «Вернуть в публикацию»