Продажа: Дом 120 м² + участок 8,0 соток
село Каменка, Гармония, 2427 (Новосибирский район)

цена 9 900 000 руб.

№ объекта: 84826

Обновлено: 20.11.2025

  • Отключить автопереход
    карты со схемы на гибрид

ГОТОВЫЙ ДОМ НА УЧАСТКЕ 8 СОТОК В КП ГАРМОНИЯ ОТ ЮР.ЛИЦА ПОДХОДИТ ПОД ВСЕ ПРОГРАММЫ

Двухэтажный дом 120м2 из 400мм Газобетона, облицовка кирпич на ленточном фундаменте.
В дом заведены все необходимые для жизни коммуникации:
Водоснабжение централизованное (скважина КП).
Электричество разведено по дому.
Отопление электрокотел с разводкой теплого пола по всему дому, а на втором этаже радиаторами отопления.
Газ расположен по границе земельного участка.
В предчистовой отделке.

В доме три полноценных спальни с большими окнами для комфортного проживания семьи с двумя-тремя детьми
Просторная кухня-гостиная с панорамными окнами
На первом этаже свободная планировка для реализации ваших идей
Удобная котельная для организации технического сердца дома

До м. «Березовая роща» +/- 20 мин.

Цена: 9 900 000 руб. Дом подходит под все программы.

Тел: 331-02-03

  • Общее описание
  • Местоположение
  • Информация об объекте
  • Информация о земле/участке
  • Коммуникации
  • Поселковая инфраструктура
  • Прочее

ГОТОВЫЙ ДОМ НА УЧАСТКЕ 8 СОТОК В КП ГАРМОНИЯ ОТ ЮР.ЛИЦА ПОДХОДИТ ПОД ВСЕ ПРОГРАММЫ

Двухэтажный дом 120м2 из 400мм Газобетона, облицовка кирпич на ленточном фундаменте.
В дом заведены все необходимые для жизни коммуникации:
Водоснабжение централизованное (скважина КП).
Электричество разведено по дому.
Отопление электрокотел с разводкой теплого пола по всему дому, а на втором этаже радиаторами отопления.
Газ расположен по границе земельного участка.
В предчистовой отделке.

В доме три полноценных спальни с большими окнами для комфортного проживания семьи с двумя-тремя детьми
Просторная кухня-гостиная с панорамными окнами
На первом этаже свободная планировка для реализации ваших идей
Удобная котельная для организации технического сердца дома

До м. «Березовая роща» +/- 20 мин.

Цена: 9 900 000 руб. Дом подходит под все программы.

Тел: 331-02-03

Местоположение

Регион
Новосибирская область
Район региона
Новосибирский район
Населенный пункт
село Каменка
Муниципальное образование
Каменский сельсовет
Микрорайон
Гармония
Номер дома
2427
Ориентир
54:19:120701:16490

Информация об объекте

Подтип недвижимости
Дом/коттедж
Вид строения
Готовое
Площадь объекта (м²)
120.00
Год постройки
2025
Материал дома
Газобетон
Этажность
2
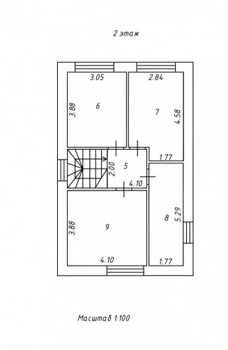
Кол-во жилых помещений
5
Санузел
Внутренний
Терасса
нет
Мебель
нет
Возможность прописки
есть

Информация о земле/участке

Площадь участка
8.00 сот
Категория земель
Земли сельхоз назначения
Разрешенное использование
Под строительство дома

Коммуникации

Электричество
есть
Водоснабжение
есть
Вид водоснабжения
Круглогодичное
Тип водоснабжения
Центральное
Газоснабжение
Магистральный по границе участка
Отопление
Электричество
Канализация
Септик
Проводной интернет
возможность подключения

Поселковая инфраструктура

Внутрипоселковая дорога
Асфальтированная
Охрана
есть
Проживание
Круглогодичное
Уличное освещение
есть
Общественные внутрипоселковые зоны
Детские площадки, Магазины, Прогулочная парковая зона
Дополнительная информация
Поселок находится недалеко от с. Каменка и расположен всего в 18 минутах езды до станции метро «Березовая Роща». Территория с пропускным пунктом. На территории коттеджного посёлка «Гармония» — детский игровой городок, workout-зона, место для отдыха и спортивная площадка. В нескольких минутах езды находится вся инфраструктура с. Каменка: Новая школа и детский сад, отделения банков , супермаркеты, больница, салоны красоты, фитнес-клуб, озеро со своим пляжем, пункты выдачи интернет заказов Озон, ВБ, Сдэк.

Прочее

Поставлен на кадастровый учет
да
Кадастровый паспорт с установленными границами
да

Выбор местоположения

Задать вопрос / написать нам

E-mail: domgis@mail.ru

Мы свяжемся с Вами в течение дня.

Тех. поддержка
Предмет обращения:
Тукущая страница

Мы свяжемся с Вами в течение дня.

Обратный звонок
Обратный звонок
Выберите ваш город
Пожаловаться

Объявление опубликовано.
Изменения сохранены

Период публикации - бессрочный, при условии подтверждения актуальности каждые 50 дней. Уведомления будут отправляться на Вашу электронную почту.

Выберите причину снятия с публикации

Снятые с публикации объявления не участвуют в поиске и недоступны для подробного просмотра.

Для повторной публикации нажмите «Вернуть в публикацию»