Продажа: Дом 125 м² + участок 5,8 соток
ТСН Тандем, 19 (Новосибирский район)

цена 8 620 000 руб.

№ объекта: 85589

Обновлено: 12.02.2026

  • Отключить автопереход
    карты со схемы на гибрид

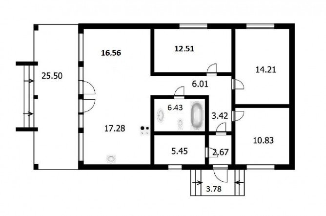
Одноэтажный дом с панорамными окнами и большой террасой 25,5м.2

Общая площадь дома - 125 м.2

Три спальни  ( 12,5 м.2+14,2 м.2+10,8  м.2) с окнами в пол , высота потолков 2,8м.

Кухня гостиная 33,8м.2 с выходом на террасу и вторым светом с высотой потолка 4.2 м.

Сан. узел 6,4 м.2

Котельная 5,5 м.2

Отопление дома – теплые водяные  полы и батареи ( электро котел, газ по участку )

Инженерные коммуникации полностью сделаны

Вода в дом заведена , установлен переливной септик.

Внутренняя отделка  WHITE BOX 

Вентиляция – приточные клапана и Рекуператор VAKIO Window Smart

Кровля дома: металлочерепица 0,45мм. , ветро-влаго защитная  мембрана

Внешняя отделка :  Фиброцементный сайдинг .

БОЛЬШОЙ , ТЕПЛЫЙ И УЮТНЫЙ ДОМ – ЗАХОДИ, БЕРИ И ЖИВИ !

  • Общее описание
  • Местоположение
  • Информация об объекте
  • Информация о земле/участке
  • Коммуникации
  • Поселковая инфраструктура
  • Прочее

Одноэтажный дом с панорамными окнами и большой террасой 25,5м.2

Общая площадь дома - 125 м.2

Три спальни  ( 12,5 м.2+14,2 м.2+10,8  м.2) с окнами в пол , высота потолков 2,8м.

Кухня гостиная 33,8м.2 с выходом на террасу и вторым светом с высотой потолка 4.2 м.

Сан. узел 6,4 м.2

Котельная 5,5 м.2

Отопление дома – теплые водяные  полы и батареи ( электро котел, газ по участку )

Инженерные коммуникации полностью сделаны

Вода в дом заведена , установлен переливной септик.

Внутренняя отделка  WHITE BOX 

Вентиляция – приточные клапана и Рекуператор VAKIO Window Smart

Кровля дома: металлочерепица 0,45мм. , ветро-влаго защитная  мембрана

Внешняя отделка :  Фиброцементный сайдинг .

БОЛЬШОЙ , ТЕПЛЫЙ И УЮТНЫЙ ДОМ – ЗАХОДИ, БЕРИ И ЖИВИ !

Местоположение

Регион
Новосибирская область
Район региона
Новосибирский район
Населенный пункт
ТСН Тандем
Муниципальное образование
Березовский сельсовет
Направление
Академгородок - Кольцово - Барышево
Номер дома
19
Ориентир
54:19:176401:2199

Информация об объекте

Подтип недвижимости
Дом/коттедж
Вид строения
Под самоотделку
Площадь объекта (м²)
125.00
Материал дома
Каркасно-панельный
Этажность
1
Кол-во жилых помещений
4
Санузел
Внутренний
Терасса
есть

Информация о земле/участке

Площадь участка
5.83 сот
Категория земель
Земли сельхоз назначения
Разрешенное использование
Ведение садоводства

Коммуникации

Электричество
есть
Водоснабжение
есть
Вид водоснабжения
Круглогодичное
Тип водоснабжения
Центральное
Газоснабжение
Магистральный в доме или на участке
Канализация
Септик
Проводной интернет
есть

Поселковая инфраструктура

Внутрипоселковая дорога
Грунтовая
Охрана
есть
Проживание
Круглогодичное

Выбор местоположения

Задать вопрос / написать нам

E-mail: domgis@mail.ru

Мы свяжемся с Вами в течение дня.

Тех. поддержка
Предмет обращения:
Тукущая страница

Мы свяжемся с Вами в течение дня.

Уведомление
Предмет обращения:
Тукущая страница
Обратный звонок
Обратный звонок
Выберите ваш город
Пожаловаться

Объявление опубликовано.
Изменения сохранены

Период публикации - бессрочный, при условии подтверждения актуальности каждые 50 дней. Уведомления будут отправляться на Вашу электронную почту.

Выберите причину снятия с публикации

Снятые с публикации объявления не участвуют в поиске и недоступны для подробного просмотра.

Для повторной публикации нажмите «Вернуть в публикацию»