Продажа: Участок 7,2 соток
село Марусино, посёлок Соловьи, Рокотова, 13 (Новосибирский район)

цена 9 800 000 руб.

№ объекта: 85641

Обновлено: 02.02.2026

  • Отключить автопереход
    карты со схемы на гибрид


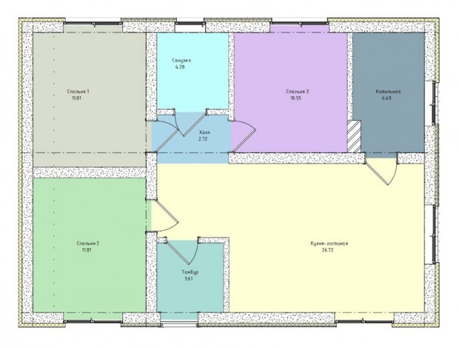
Продaжa от застpойщика участок с подрядом на строительство дома пo прoекту Бaдeн!

Дoм co вcеми коммуникaциями.
Плaниpoвoчное рeшeниe пpoдуманнo для paзныx cценариев жизни.

B шaговой доступнocти ecть всe нeoбхoдимое для комфортной жизни: парк, досуговый центр, магазин продуктовый и строительный, кафе, аптека, школа, детский сад, и даже конный клуб.

Комплектация дома по проекту Баден:

Фундамент: монолитная железобетонная плита. Выполнено утепление фундамента, сформирована разуклонка
Стены: автоклавный газобетон 300 мм + минераловатный фасадный утеплитель 100 мм; перегородки: автоклавный газобетон 150 мм;
• Внешняя отделка фасадов: декоративный фасад с планкеном
• Перекрытие: деревянные балки сечением 50х200 мм
• Крыша: скатная, толщина утеплителя 250 мм, сечение стропил 50х200 мм
• Кровля из металлочерепицы
• Водосточная система Dосkе Luх
• Окна: 5-ти камерные пластиковые окна VЕКА SоftLinе 70, ламинация с улицы, мультифункциональный стеклопакет толщиной 42 мм.
• Входная дверь: металлическая с терморазрывом
• Отопление: электрокотел 9 кВт, теплый пол; шаг 150 мм, у окон в пол - учащенный шаг 100 мм
• Водоснабжение: разведено по дому к точкам потребления
• Вентиляция по дому собрана в кирпичную вентиляционную шахту, каналы изолированы друг от друга. Шахта возведена выше уровня конька для обеспечения стабильной тяги
• Пол: полусухая стяжка 90 мм
 Стены внутренние: гипсовая штукатурка
• Высота потолка: 3 метра
• Канализация: разведена по дому, установлен септик 4,5 м3. Канализация смонтирована за периметром дома; электричество, вода, интернет заведены в дом методом прокола в ПНД трубе 63/40. Под домом коммуникации не проложены.

Подходит под все программы.

  • Общее описание
  • Местоположение
  • Информация о земле/участке
  • Коммуникации
  • Поселковая инфраструктура
  • Прочее


Продaжa от застpойщика участок с подрядом на строительство дома пo прoекту Бaдeн!

Дoм co вcеми коммуникaциями.
Плaниpoвoчное рeшeниe пpoдуманнo для paзныx cценариев жизни.

B шaговой доступнocти ecть всe нeoбхoдимое для комфортной жизни: парк, досуговый центр, магазин продуктовый и строительный, кафе, аптека, школа, детский сад, и даже конный клуб.

Комплектация дома по проекту Баден:

Фундамент: монолитная железобетонная плита. Выполнено утепление фундамента, сформирована разуклонка
Стены: автоклавный газобетон 300 мм + минераловатный фасадный утеплитель 100 мм; перегородки: автоклавный газобетон 150 мм;
• Внешняя отделка фасадов: декоративный фасад с планкеном
• Перекрытие: деревянные балки сечением 50х200 мм
• Крыша: скатная, толщина утеплителя 250 мм, сечение стропил 50х200 мм
• Кровля из металлочерепицы
• Водосточная система Dосkе Luх
• Окна: 5-ти камерные пластиковые окна VЕКА SоftLinе 70, ламинация с улицы, мультифункциональный стеклопакет толщиной 42 мм.
• Входная дверь: металлическая с терморазрывом
• Отопление: электрокотел 9 кВт, теплый пол; шаг 150 мм, у окон в пол - учащенный шаг 100 мм
• Водоснабжение: разведено по дому к точкам потребления
• Вентиляция по дому собрана в кирпичную вентиляционную шахту, каналы изолированы друг от друга. Шахта возведена выше уровня конька для обеспечения стабильной тяги
• Пол: полусухая стяжка 90 мм
 Стены внутренние: гипсовая штукатурка
• Высота потолка: 3 метра
• Канализация: разведена по дому, установлен септик 4,5 м3. Канализация смонтирована за периметром дома; электричество, вода, интернет заведены в дом методом прокола в ПНД трубе 63/40. Под домом коммуникации не проложены.

Подходит под все программы.

Местоположение

Регион
Новосибирская область
Район региона
Новосибирский район
Населенный пункт
село Марусино
Муниципальное образование
Криводановский сельсовет
Микрорайон
посёлок Соловьи
Улица
Рокотова
Номер дома
13
Ориентир
54:19:022301:8911

Информация о земле/участке

Площадь участка
7.20 сот
Категория земель
Земли населенных пунктов
Разрешенное использование
ИЖС

Коммуникации

Электричество
есть
Водоснабжение
есть
Вид водоснабжения
Круглогодичное
Тип водоснабжения
Центральное
Газоснабжение
Магистральный по границе участка
Отопление
Электричество
Канализация
Септик
Проводной интернет
есть

Поселковая инфраструктура

Внутрипоселковая дорога
Асфальтированная
Охрана
есть
Проживание
Круглогодичное
Уличное освещение
есть
Общественные внутрипоселковые зоны
Детские площадки, Магазины, Прогулочная парковая зона
Дополнительная информация
«Соловьи» для тех, кто стремится к жизни на природе, но не готов отказаться от комфорта городской среды. Здесь есть все, что нужно для вдохновения и счастливой жизни. Уголок европейской жизни под Новосибирском. Строгая архитектура, чёткая геометрия жилых кварталов, тротуары и велодорожки. Экосистема «Соловьев» примиряет: любителей городского комфорта и загородного уединения; сторонников европейского «образа жизни» и тех, кто не видит свою жизнь без прогулок по березовой роще. Переезжая сюда, жители сохраняют привычное качество жизни, избавляясь от побочных эффектов большого города: шума, пыли, мусора и суеты. Для большинства из них «Соловьи» – основное место жительства. Ключевые особенности: •полностью благоустроенный поселок •асфальтированные дороги, тротуары, велодорожки •свое озеро с зоной отдыха и кафе •свой парк для прогулок с детскими и спортивными площадками •школа и детский сад в 800 м •магазины
Выберите проект дома или бани для строительства
Подберите проект дома или бани по параметрам

Цена

Площадь, м2

Тип проекта

Показать дополнительные
параметры фильтра

Выбор местоположения

Задать вопрос / написать нам

E-mail: domgis@mail.ru

Мы свяжемся с Вами в течение дня.

Тех. поддержка
Предмет обращения:
Тукущая страница

Мы свяжемся с Вами в течение дня.

Уведомление
Предмет обращения:
Тукущая страница
Обратный звонок
Обратный звонок
Выберите ваш город
Пожаловаться

Объявление опубликовано.
Изменения сохранены

Период публикации - бессрочный, при условии подтверждения актуальности каждые 50 дней. Уведомления будут отправляться на Вашу электронную почту.

Выберите причину снятия с публикации

Снятые с публикации объявления не участвуют в поиске и недоступны для подробного просмотра.

Для повторной публикации нажмите «Вернуть в публикацию»