Продажа: Дом 100 м² + участок 5,4 соток
село Ленинское, микрорайон Приморье, 8 (Новосибирский район)

цена 9 500 000 руб.

№ объекта: 86497

Обновлено: 08.04.2026

  • Отключить автопереход
    карты со схемы на гибрид


☑️ДОМА от застройщика. ИП. Под ключ. С участком и коммуникациями.

Ипотека от 3% (сельская), семейная

 

☑️ ОПИСАНИЕ ДОМА:

✔️ Коттедж. посёлок Приморье

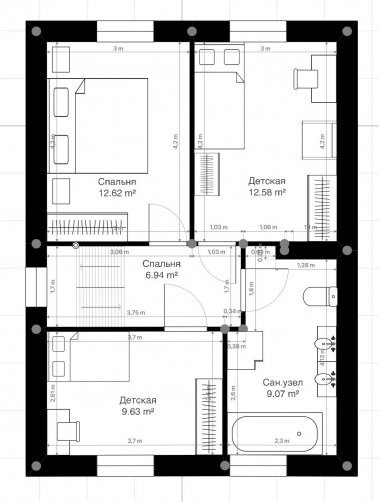
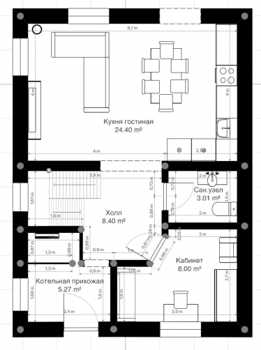
✔️ Площадь дома: 100м²

✔️ 3 спальни, Кабинет, 2 санузла; Кухня-гостиная 24 м2, Гардеробная, Котельная.

✔️ Возможность оформления официальной прописки

✔️ Городская вода, свет 12квт, септик 6,5м3, электрокотел. Возможность подключить газ.

✔️ Документы готовы к сделке.

ИПОТЕКА семейная, сельская, материнский капитал.

✔️ Гарантия - 5 лет.

 

☑️ В посёлке:

✔️ Дороги асфальтированные

✔️ Шлагбаум, остановка транспорта в 5 минутах ходьбы от дома

✔️ Ближайшая станция м. Маркса - (30 мин. на машине)

✔️ ТЦ "МЕГА", Ашан, Леруа, Икеа - (25 мин. на машине)

✔️ Обское море, спортивный комплекс АРКА, бассейн (5-7 мин. пешком)

✔️ Магазины, школа, садик, аптеки - (10 мин.) ☑️ Конструктив дома:

✔️ Фундамент - ленточный на буронабивных сваях

✔️ Cтены – автокл. заводской блок «Сибит» - 300 мм., утеплитель

✔️ Армопояс – под перекрытием

✔️ Перекрытия - 1эт. -монолитная ж.б. плита, между 1/2 эт. завод. ж.б. плиты.

✔️ Вентиляция – выполнена кирпичной кладкой в кухне-гостиной.

✔️ Лестница межэтажная - монолитная

✔️ Крыша утепленная, металлочерепица

✔️ Фасад – облицовочный кирпич завода Ликолор

✔️ Пластиковые окна, входная металлическая дверь.

☑️ КОММУНИКАЦИИ - заведены, подключены. Выполнена разводка по дому.

✔️ Отопление: электрокотел, горячее водоснабжение и система теплого пола

✔️ Электричество: монтаж проводки, счетчик, розетки, выключатели

✔️ Водоснабжение: вода заведена в дом, выполнена разводка труб

✔️ Канализация: автономное - септик 6.5 куб., монтаж труб внутри дома.

 

☑️ ВНУТРЕННЯЯ ОТДЕЛКА - выполнена

✔️ Пол – водяной теплый, выполнена полусухая стяжка по маякам

✔️ Стены - финишная шпатлёвка ☑️ ЦЕНА: 9 500 000 р

Сдача июль 2026г.

❤️Приезжайте к нам на экскурсию, чтобы посмотреть дома, посёлок и задать нам лично все интересующие вопросы!)

 

 

 

  • Общее описание
  • Местоположение
  • Информация об объекте
  • Информация о земле/участке
  • Коммуникации
  • Поселковая инфраструктура
  • Прочее


☑️ДОМА от застройщика. ИП. Под ключ. С участком и коммуникациями.

Ипотека от 3% (сельская), семейная

 

☑️ ОПИСАНИЕ ДОМА:

✔️ Коттедж. посёлок Приморье

✔️ Площадь дома: 100м²

✔️ 3 спальни, Кабинет, 2 санузла; Кухня-гостиная 24 м2, Гардеробная, Котельная.

✔️ Возможность оформления официальной прописки

✔️ Городская вода, свет 12квт, септик 6,5м3, электрокотел. Возможность подключить газ.

✔️ Документы готовы к сделке.

ИПОТЕКА семейная, сельская, материнский капитал.

✔️ Гарантия - 5 лет.

 

☑️ В посёлке:

✔️ Дороги асфальтированные

✔️ Шлагбаум, остановка транспорта в 5 минутах ходьбы от дома

✔️ Ближайшая станция м. Маркса - (30 мин. на машине)

✔️ ТЦ "МЕГА", Ашан, Леруа, Икеа - (25 мин. на машине)

✔️ Обское море, спортивный комплекс АРКА, бассейн (5-7 мин. пешком)

✔️ Магазины, школа, садик, аптеки - (10 мин.) ☑️ Конструктив дома:

✔️ Фундамент - ленточный на буронабивных сваях

✔️ Cтены – автокл. заводской блок «Сибит» - 300 мм., утеплитель

✔️ Армопояс – под перекрытием

✔️ Перекрытия - 1эт. -монолитная ж.б. плита, между 1/2 эт. завод. ж.б. плиты.

✔️ Вентиляция – выполнена кирпичной кладкой в кухне-гостиной.

✔️ Лестница межэтажная - монолитная

✔️ Крыша утепленная, металлочерепица

✔️ Фасад – облицовочный кирпич завода Ликолор

✔️ Пластиковые окна, входная металлическая дверь.

☑️ КОММУНИКАЦИИ - заведены, подключены. Выполнена разводка по дому.

✔️ Отопление: электрокотел, горячее водоснабжение и система теплого пола

✔️ Электричество: монтаж проводки, счетчик, розетки, выключатели

✔️ Водоснабжение: вода заведена в дом, выполнена разводка труб

✔️ Канализация: автономное - септик 6.5 куб., монтаж труб внутри дома.

 

☑️ ВНУТРЕННЯЯ ОТДЕЛКА - выполнена

✔️ Пол – водяной теплый, выполнена полусухая стяжка по маякам

✔️ Стены - финишная шпатлёвка ☑️ ЦЕНА: 9 500 000 р

Сдача июль 2026г.

❤️Приезжайте к нам на экскурсию, чтобы посмотреть дома, посёлок и задать нам лично все интересующие вопросы!)

 

 

 

Местоположение

Регион
Новосибирская область
Район региона
Новосибирский район
Населенный пункт
село Ленинское
Муниципальное образование
Морской сельсовет
Микрорайон
микрорайон Приморье
Номер дома
8

Информация об объекте

Подтип недвижимости
Дом/коттедж
Вид строения
Незавершенное строительство
Площадь объекта (м²)
100.00
Год постройки
2026
Материал дома
Газобетон
Этажность
2
Кол-во жилых помещений
6
Санузел
Внутренний
Терасса
нет
Мебель
нет
Возможность прописки
есть

Информация о земле/участке

Площадь участка
5.39 сот
Категория земель
Земли населенных пунктов
Разрешенное использование
ИЖС 2.1

Коммуникации

Электричество
есть
Водоснабжение
есть
Вид водоснабжения
Круглогодичное
Тип водоснабжения
Центральное
Газоснабжение
Магистральный по границе участка
Отопление
Электричество
Канализация
Септик
Проводной интернет
возможность подключения

Поселковая инфраструктура

Внутрипоселковая дорога
Асфальтированная
Охрана
есть
Проживание
Круглогодичное
Уличное освещение
есть
Дополнительная информация
☑️ В посёлке: ✔️ Дороги асфальтированные ✔️ Шлагбаум, остановка транспорта в 5 минутах ходьбы от дома ✔️ Ближайшая станция м. Маркса - (30 мин. на машине) ✔️ ТЦ "МЕГА", Ашан, Леруа, Икеа - (25 мин. на машине) ✔️ Обское море, спортивный комплекс АРКА, бассейн (5-7 мин. пешком) ✔️ Магазины, школа, садик, аптеки - (10 мин.)

Прочее

Кадастровый паспорт с установленными границами
да

Выбор местоположения

Задать вопрос / написать нам

E-mail: domgis@mail.ru

Мы свяжемся с Вами в течение дня.

Тех. поддержка
Предмет обращения:
Тукущая страница

Мы свяжемся с Вами в течение дня.

Уведомление
Предмет обращения:
Тукущая страница
Обратный звонок
Обратный звонок
Выберите ваш город
Пожаловаться

Объявление опубликовано.
Изменения сохранены

Период публикации - бессрочный, при условии подтверждения актуальности каждые 50 дней. Уведомления будут отправляться на Вашу электронную почту.

Выберите причину снятия с публикации

Снятые с публикации объявления не участвуют в поиске и недоступны для подробного просмотра.

Для повторной публикации нажмите «Вернуть в публикацию»